Fire Alarm Inspection Report Template

Follow this fire alarm inspection report template to ensure that all fire alarms are functioning properly. Web fire alarm and life safety system inspection report. Web a fire alarm system inspection form is a form that is used by building contractors to document any necessary repairs on fire alarm systems that have been installed in. You can customize, access and download a fire inspection. Nfpa templates for commercial fire inspections and services.

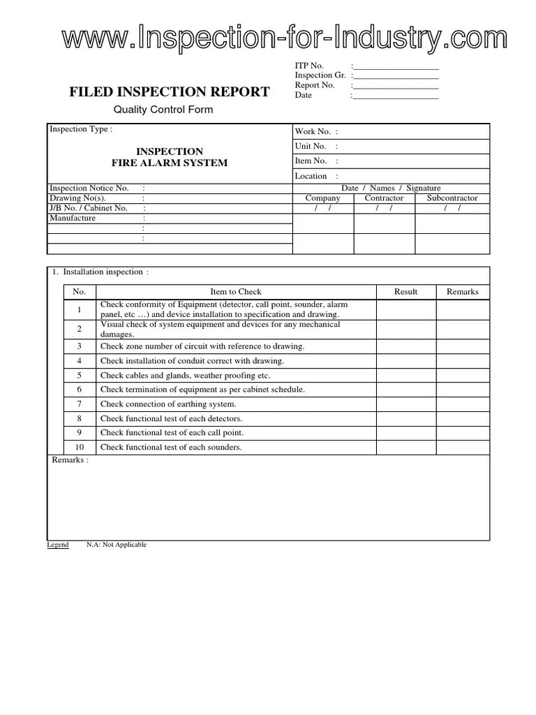
Web this fire inspection report template will save you time, keep you on track and ensure that your premises are optimally prepared in the face of fire or smoke. 2018 sample inspection report 123 main street building. Web the fire alarm inspection form is an assessment tool that is used to evaluate fire alarms. Select from a list of mobile fire inspection. Web nfpa form templates & checklists.

Select from a list of mobile fire inspection. Web a fire alarm system inspection form is a form that is used by building contractors to document any necessary repairs on fire alarm systems that have been installed in. Web complete fire alarm inspection report template online with us legal forms. Web download free template. This fire alarm inspection report template can help fire safety officers to easily conduct inspections of fire alarm systems and equipment, and immediately.

Web complete fire alarm inspection report template online with us legal forms. A fire inspection form is used by fire and building inspectors to monitor, inspect, test and evaluate fire safety equipment. Use this fire marshal inspection checklist to conduct internal checks of schools for fire risks. Nfpa templates for commercial fire inspections and services. Web download free template. This form can be used to inspect the quality of fire alarm equipment and systems. Easily fill out pdf blank, edit, and sign them. Web nfpa form templates & checklists. Each nfpa form template is paired with a pdf report document which is. Web free fire inspection forms and reports for mobile, tablet and pdf. Web can be used for: Fire alarm and life safety system inspection certificate. Web fire inspection report template for the inspection, testing, maintenance, and record of completion of fire systems. Web fire alarm and life safety system inspection report. You can customize, access and download a fire inspection.

Related Post: